Ranta-Tampella is a modern waterfront district in Tampere, Finland, built on reclaimed land along the shores of Näsijärvi. Originally an industrial area, it has been transformed into a residential and commercial hub featuring canals, pedestrian-friendly promenades, and green spaces. Though not a traditional island, its artificial land extensions and waterways give it the feel of an urban archipelago, integrating water and city life.
“Caught out in the rain, an ant takes shelter under a very tiny mushroom. Soon, a wet butterfly, then a drenched mouse, a dripping sparrow, and even a rain-soaked rabbit each beg to join him under his miniature umbrella. How can the ant let the others in when there is barely room enough for one? But as the rain comes down and down, they all somehow manage to squeeze together and share the tiny shelter. And when the sun finally comes out, the ant discovers a magical secret of just what happens to mushrooms in the rain!”
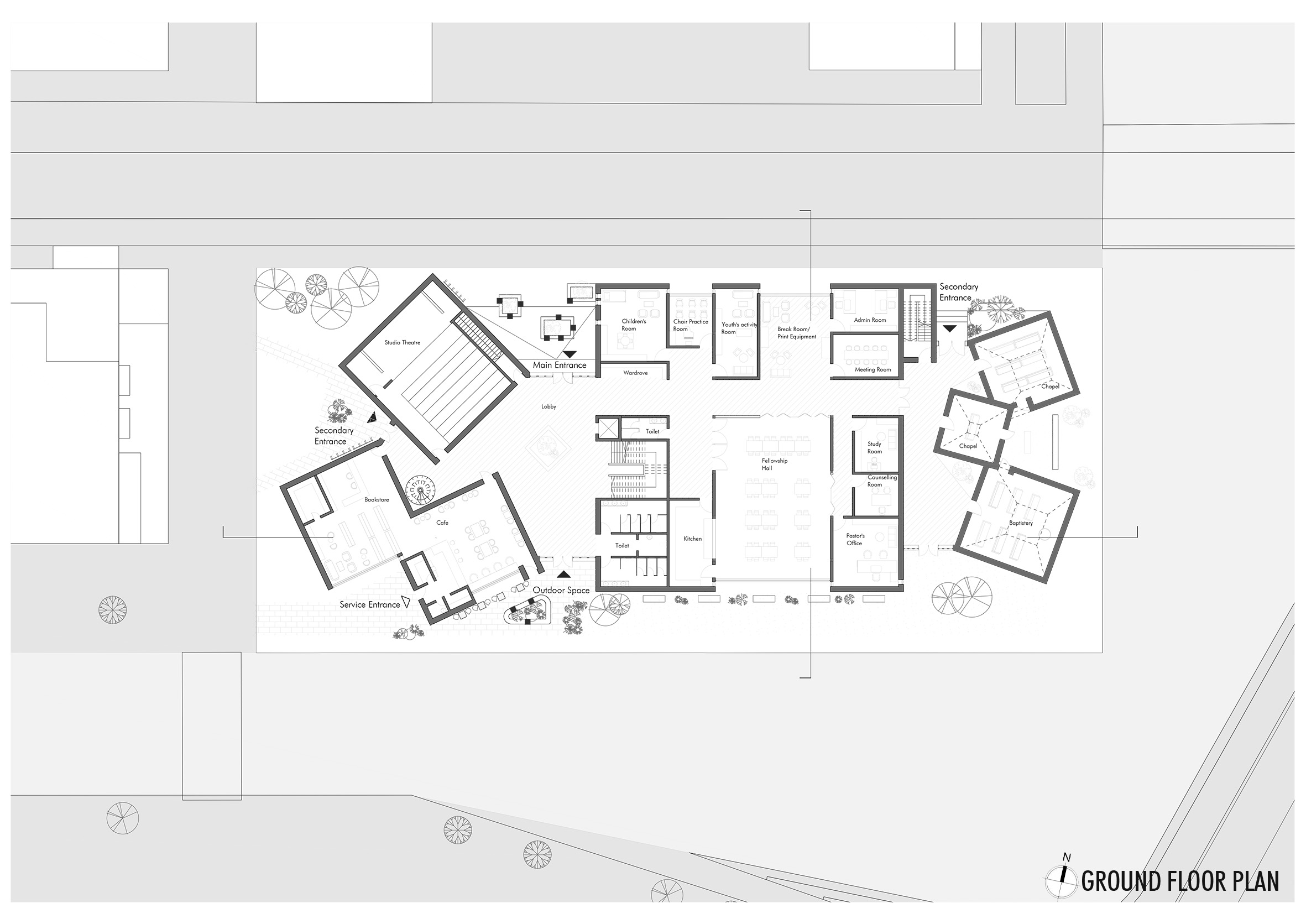
Inspired by the way a mushroom opens and grows in the rain, this church becomes a symbol of inclusivity, justice, and warmth. The church imagines a space that grows not through physical expansion but through spirit and intention. Its design captures the lightness and strength of this natural form – rising from the earth and expanding to the sky. Connecting these two is a key architectural feature with a play of the natural light. The roof structure is crowned with a skylight, allowing light to shine the altar as well as the other mushrooms their spaces. This dialogue between light and shadow enhances the sense of wonder and spirituality, evoking the feeling of finding warmth and clarity after a storm.
The church also extends its vision of inclusivity through diverse outdoor spaces. A communal courtyard serves as a space for gathering. A quiet garden offers a place for silence and prayer, meanwhile, a lively social terrace at the café invites informal interaction and conversation, fostering connection and community.
These ideas brought the concept of the mushroom together in a church where there is always room for one more.
















