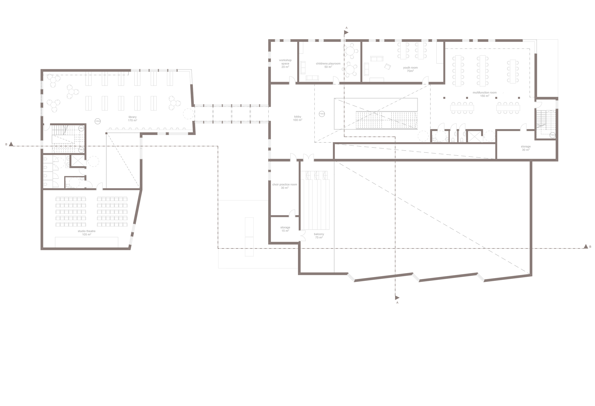
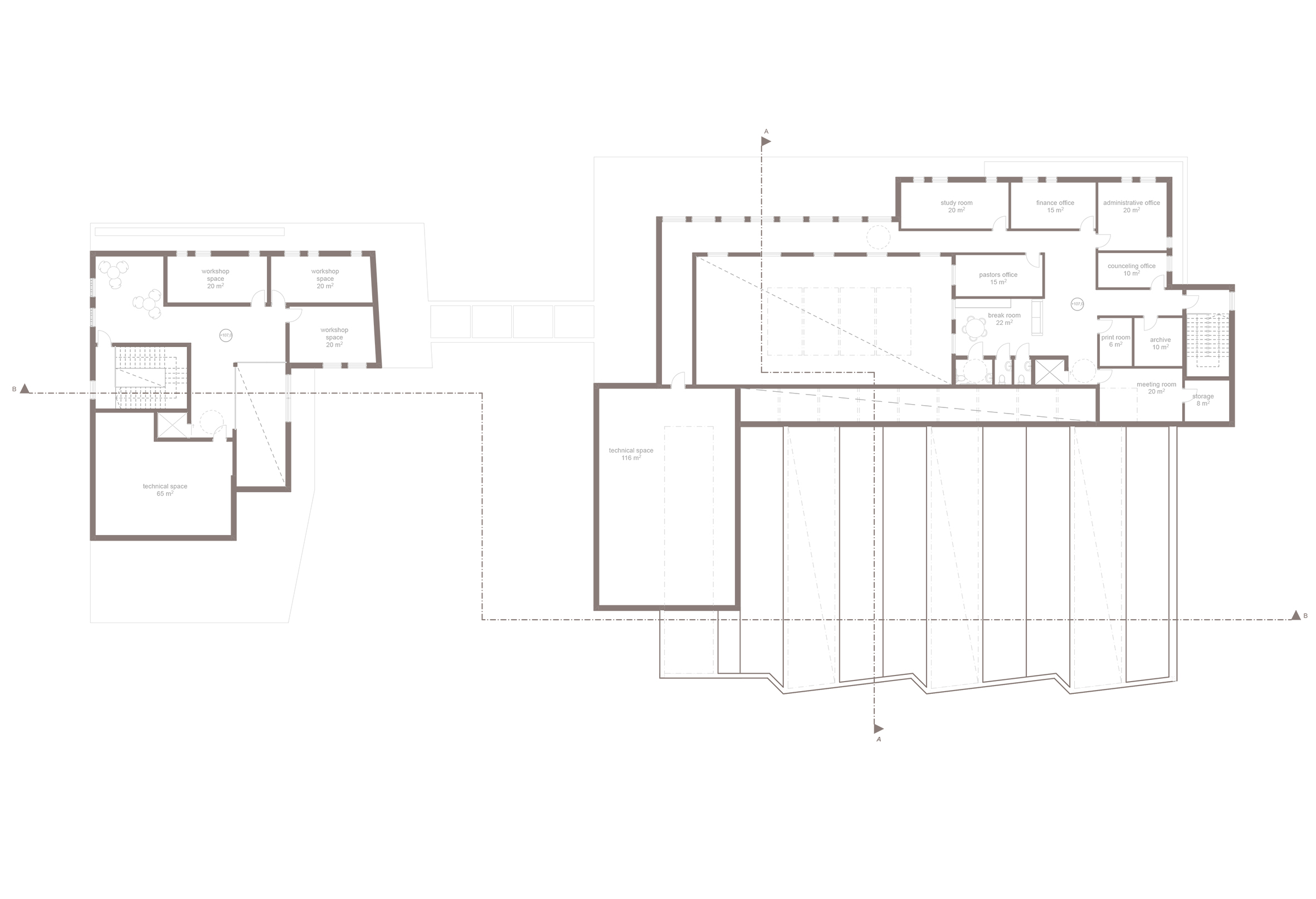
Takojan kirkko is a modern church located in the Ranta-Tampella district of Tampere, designed to serve both sacred and communal functions. Inspired by the industrial heritage and blocky typology of its surroundings, the church blends into the urban fabric with its low, factory-like massing and dark brick exterior. Wooden entrances and lace brick detailing soften the facade, while a central bell tower subtly emphasizes the church’s identity.
Inside, the contrast continues as the dark, industrial exterior gives way to a light, serene interior. Open, flowing spaces foster a sense of unity and welcome, with adaptable rooms designed to accommodate a range of spiritual and social functions. The sacred and secular areas are organized around a shared courtyard, promoting interaction and community.
Symbolism is subtly woven throughout, such as a cross embedded in the east-facing brick facade and carefully placed skylights that frame light as a spiritual element. Vertical spatial variation enhances the experiential quality, with calming lower spaces and soaring ceilings in key areas like the church hall. Each element contributes to a holistic environment that respects tradition while addressing contemporary needs. Takojan kirkko stands as a thoughtful response to site, community, and spirituality—an inviting, human-scaled space for reflection and connection.


















