Vetten Yllä is a contemporary church designed to meet the needs of both the parish and the surrounding Ranta-Tampella community. It is a versatile public building that functions as a spiritual gathering space, a neighborhood living room, and a venue for events of all scales.
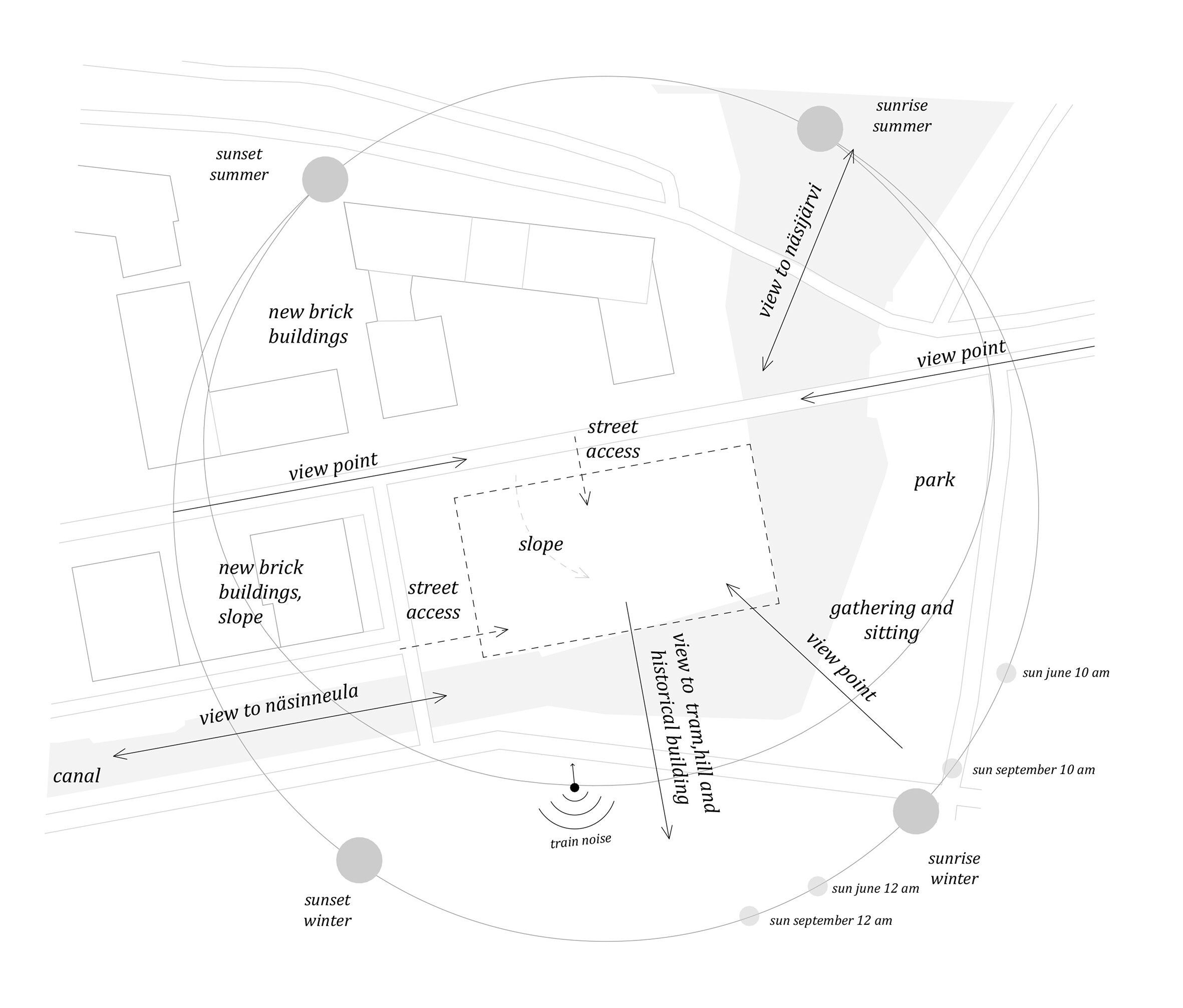
The architectural concept draws inspiration from the Creation story, where the Spirit of God hovers over the waters. The church integrates respectfully into the urban fabric while asserting its identity through contrast. Positioned at the canal’s edge, it anchors the site both compositionally and programmatically: its linear form begins at street level, marking the secular threshold, and transitions toward the water, where the sacred spaces unfold. The building’s massing, light material palette, and refined detailing highlight its floating character and emphasize its role as a meaningful spatial and social anchor in the city. The design responds to key viewpoints and the granularity of the surrounding fabric, forming an elegant civic presence. A network of pathways connects the church naturally to its surroundings, enhancing pedestrian flow and creating inviting routes.
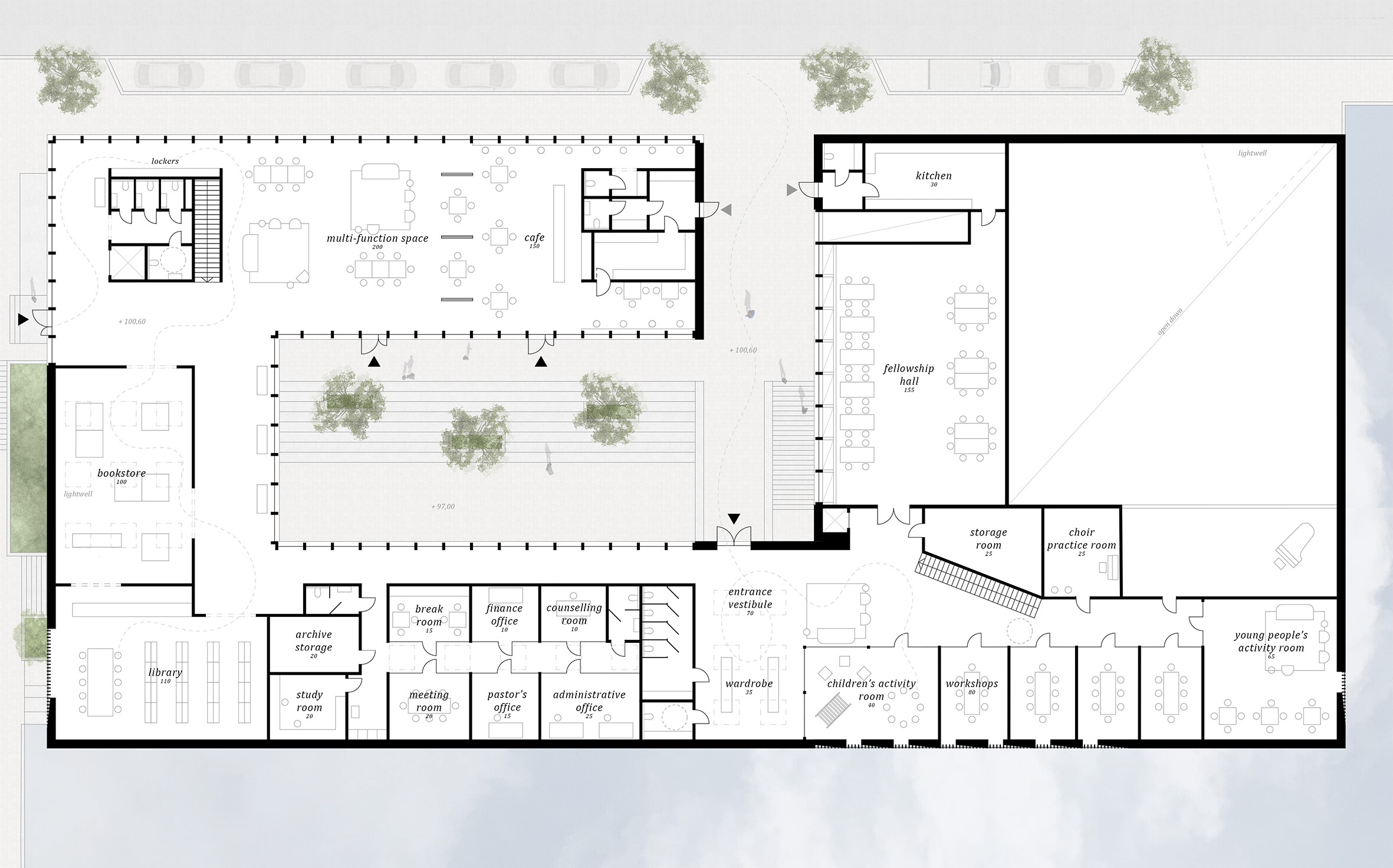
The spatial organization emphasizes functional flexibility and inclusivity. The building is divided into interconnected zones that support shared use while preserving the necessary distinctions between sacred, semi-public, and commercial areas. Layered access allows for seamless transitions or clear separation, depending on the time of day or intended use.












